Rif: Plesso scolastico
MARIGLIANO
NAPOLI
Ex Plesso Scolastico - Marigliano
Opportunità Unica per Istituti Educativi e non!
Disponiamo in esclusiva di un immobile , già configurato come plesso scolastico, ideale per accogliere asili, scuole di formazione o altre strutture educative comunitarie. Situato nella tranquilla zona di Miuli a Marigliano, questo edificio indipendente offre spazi generosi e attrezzature adeguate per un ambiente di apprendimento ottimale.
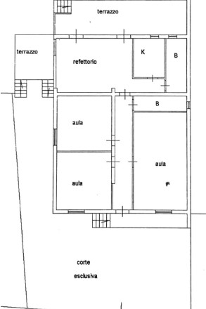
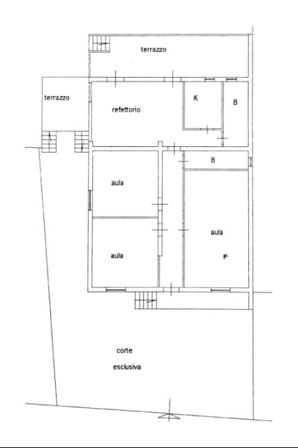
Superficie Coperta: 250 mq interni, Spazi Esterni, Ampio cortile esclusivo con terrazzo, 3 ampie aule, Cucina, refettorio, due aree servizi igienici separate per alunni e personale
Tipo di Contratto: da concordare in base alle esigenze del locatario
Questo immobile rappresenta una soluzione ideale per le realtà educative alla ricerca di una sede che sia al tempo stesso funzionale, accogliente e sicura.
PER INFO SCRIVICI SU WHATSAPP AL NUMERO 3931004244
Opportunità Unica per Istituti Educativi e non!
Disponiamo in esclusiva di un immobile , già configurato come plesso scolastico, ideale per accogliere asili, scuole di formazione o altre strutture educative comunitarie. Situato nella tranquilla zona di Miuli a Marigliano, questo edificio indipendente offre spazi generosi e attrezzature adeguate per un ambiente di apprendimento ottimale.
Superficie Coperta: 250 mq interni, Spazi Esterni, Ampio cortile esclusivo con terrazzo, 3 ampie aule, Cucina, refettorio, due aree servizi igienici separate per alunni e personale
Tipo di Contratto: da concordare in base alle esigenze del locatario
Questo immobile rappresenta una soluzione ideale per le realtà educative alla ricerca di una sede che sia al tempo stesso funzionale, accogliente e sicura.
PER INFO SCRIVICI SU WHATSAPP AL NUMERO 3931004244
Consistenze
| Descrizione | Superficie | Sup. comm. |
|---|---|---|
| Principali | ||
| Negozio - piano terra | 250 Mq | 250 Mqc |
| Esterno - piano terra | 150 Mq | 45 Mqc |
| Totale | 295 Mqc | |
