Rif: Nola Carceri
NOLA
NAPOLI
Situato nel cuore di Nola, nella rinomata e strategica zona di "Giù alle Carceri", questo incantevole appartamento offre la comodità di vivere in pieno centro con tutte le attrazioni e i servizi a portata di mano.
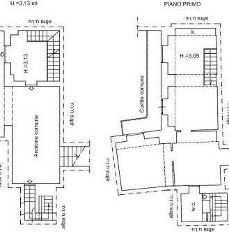
Posto al Primo piano con ingresso indipendente, si compone di Cucina, salone, una camera da letto, un disimpegno, bagno e zona lavanderia.
Dotato di un essenziale posto auto privato, un vero lusso nella zona data la scarsità di parcheggio disponibile.
L'appartamento è piccolo ma ricco di carattere, con dettagli architettonici come il tetto a volte visibili in alcune zone della casa, che aggiungono un tocco di eleganza e storicità.
L'immobile è attualmente locato con un regolare contratto fino ad aprile 2027, garantendo un immediato ritorno sull'investimento.
- Prenota il tuo appuntamento esclusivo contattandoci via WhatsApp al **393 100 42 44**.
-Visite disponibili Ogni martedì dalle 14:00 alle 15:30.
Posto al Primo piano con ingresso indipendente, si compone di Cucina, salone, una camera da letto, un disimpegno, bagno e zona lavanderia.
Dotato di un essenziale posto auto privato, un vero lusso nella zona data la scarsità di parcheggio disponibile.
L'appartamento è piccolo ma ricco di carattere, con dettagli architettonici come il tetto a volte visibili in alcune zone della casa, che aggiungono un tocco di eleganza e storicità.
L'immobile è attualmente locato con un regolare contratto fino ad aprile 2027, garantendo un immediato ritorno sull'investimento.
- Prenota il tuo appuntamento esclusivo contattandoci via WhatsApp al **393 100 42 44**.
-Visite disponibili Ogni martedì dalle 14:00 alle 15:30.
Consistenze
| Descrizione | Superficie | Sup. comm. |
|---|---|---|
| Principali | ||
| Immobile - 1° piano | 75 Mq | 75 Mqc |
| Totale | 75 Mqc | |
